| Im Vorfeld einer jeden Restaurierung ist es wichtig, den Zustand vor Beginn
der Arbeiten zu dokumentieren. Dies geschieht in der Regel durch Übersichts-
und Detailfotos des Objektes. Je nach Art des zu restaurierenden Objektes kann es
aber auch sinnvoll sein, im Vorfeld
eine Bestandszeichnung anzufertigen. |
| In ihr wird der Ist-Zustand des Objektes,
also z.B. eines Gebäudes oder eines Inventarstückes dargestellt. In die
Zeichnung können Beschädigungen, Fehlstellen oder Ergänzungen kenntlich
gemacht werden. Auch lassen sich die im Laufe von Untersuchungen gemachten
Befunde eintragen. |
| |
|
|
 |
 |
 |
| Bestandszeichnung eines Sandsteingewändes |
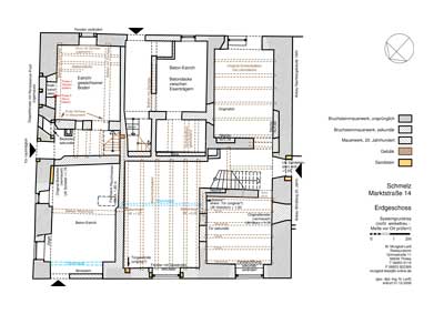
Grundriss mit Eintragung der Balkenlage und anderen Details |
Die Bestandszeichnung ermöglicht
die Kennzeichnung verschiedener
Bauphasen |
| |
|
|
| Bei Gebäuden bildet sie die Grundlage für die
weitere Planung und ist für Architekten und Tragwerksplaner unentbehrlich.
Im Laufe einer Restaurierung können aus ihr Rekonstruktionszeichnungen entwickelt werden, in denen z.B.
verschiedene Bauphasen dargestellt werden. |
| Entsprechend der Aufgabenstellung kann eine
Bestandszeichnung einen sehr unterschiedlichen Detaillierungsgrad haben.
Neben dem klassischen Handaufmass kommen heute lasergestützte elektronische Verfahren zur
Anwendung. |
| Bei Bedarf fertigen wir Handaufmaßzeichnungen von Einrichtungselementen (z.B.
Altären oder Vertäfelunge) oder Werkstücken (z.B. Gewändesteinen von
Gebäuden) mit Schadenskartierung und ggf. Maßnahmenkatalog zur Restaurierung. Auch
einfache Architektenaufmaße von Gebäuden können von uns erstellt werden. |
| Für
detaillierte, verformungsgerechte Aufmaße und CAD-Pläne arbeiten wir mit
hierauf spezialisierten Fachleuten zusammen. |
| |